종이 규격은 세계적으로 독일에서 제안하고 ISO 표준인증을 받은 A판형의 종이 규격을 사용하고 있습니다. 우리나라는 ISO216에 의거하여 필기용지와 각종 인쇄물의 재단치수가 잘 맞춰져 있습니다. 사이즈를 정한 원리는 자르는 과정을 몇 번 반복했느냐에 따라 용지에 명칭을 붙인 것입니다. 오늘은 A용지 사이즈 규격에 대해 알아보도록 하겠습니다.


| 호칭 | 치수(mm) |
| A0 | 841 * 1189 |
| A1 | 594 * 841 |
| A2 | 420 * 597 |
| A3 | 297 * 420 |
| A4 | 210 * 297 |
A0 용지 사이즈
A0용지의 사이즈는 841mm×1,189mm이며 인치 단위로는 33.1인치×46.8인치에 해당합니다. A0용지는 사이즈가 커서 보통 학회 포스터와 CAD 도면에 주로 사용되고 있습니다.
A1 용지 사이즈
A1용지의 사이즈는 594mm×841mm이며 인치 단위로는 23.4인치×33.1인치에 해당합니다. A1용지는 각종 대회 포스터로 많이 사용되며 건축 도면 등으로도 선호되고 있는 사이즈 입니다.
A2 용지 사이즈
A2용지의 사이즈는 420mm×567mm이며 인치 단위로는 16.5인치×23.4인치에 해당합니다. A2용지도 포스터로 활용되며 주로 달력에 많이 사용되고 있는 사이즈 입니다. 벽걸이용 달력으로 사용되기 적합합니다.
A3 용지 사이즈
A3용지의 사이즈는 297mm×420mm이며 인치 단위로는 11.7인치×16.5인치에 해당합니다. A3용지는 식당 테이블의 홍보용 전단지나 메뉴판으로 사용되며 설계도, 악보 등으로 많이 사용됩니다.
A4 용지 사이즈
A4용지의 사이즈는 210mm×297mm이며 인치 단위로는 8.3인치×11.7인치에 해당합니다. A4용지는 대중적으로도 일반적으로도 두루 사용되는 사이즈로 일반적인 프린터로 출력하는 용지가 대부분 A4용지라 할 수 있습니다.

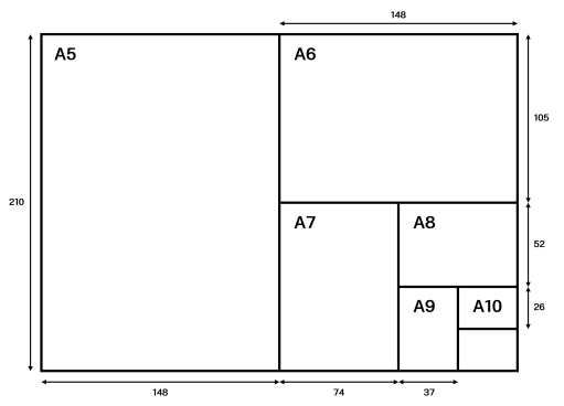
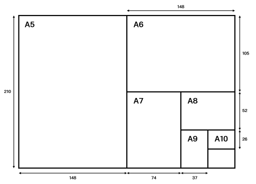
| 호칭 | 치수(mm) |
| A5 | 148 * 210 |
| A5 | 105 * 148 |
| A5 | 74 * 105 |
| A5 | 52 * 74 |
| A5 | 37 * 52 |
A5 용지 사이즈
A5용지의 사이즈는 148mm×210mm이며 인치 단위로는 5.8인치×8.3인치에 해당합니다. A5용지는 보통 작은 스프링 줄노트로 사용되거나 작은 팜플렛 사이즈로 많이 사용되고 있습니다.
A6 용지 사이즈
A6용지의 사이즈는 105mm×148mm이며 인치 단위로는 4.1인치×5.8인치에 해당합니다. A6용지 사이즈는 보통 책사이즈로 사용되고 탁상달력으로도 많이 사용되고 있습니다. 작은 사이즈로 포켓용으로도 충분합니다.
A7 용지 사이즈
A7용지의 사이즈는 74mm×105mm이며 인치 단위로는 2.9인치×4.1인치에 해당합니다. A7용지 사이즈는 포켓용 티슈 사이즈로 작은 수첩에 보통 사용이 되고 있습니다.
A8 용지 사이즈
A8용지의 사이즈는 52mm×74mm이며 인치 단위로는 2.0인치×2.9인치에 해당합니다. A8용지도 미니 수첩 등으로 사용되고 있습니다.
A9 용지 사이즈
A9용지의 사이즈는 37mm×52mm이며 인치 단위로는 1.5인치×2.0인치에 해당합니다. A9용지는 A용지 중 가장 작은 사이즈로 드문드문 작은 수첩으로도 사용되기도 합니다.
'생활 꿀팁' 카테고리의 다른 글
| QR코드 스캔하는 방법(식품정보 알아보기) (0) | 2023.10.15 |
|---|---|
| 폐가전 무상방문수거 신청 방법 총 정리 (0) | 2023.08.18 |
| 중장년 가족돌봄청년 일상돌봄 서비스 지원 알아보기 (0) | 2023.07.11 |
| 독거노인 장애인 응급안전 안심 서비스 총 정리 (0) | 2023.07.06 |
| 줌 PC버전 다운로드 방법 알아보기 (0) | 2023.07.05 |
댓글